| □物件名 | 南青山セピアコート ※現在空室はございません |
|
|---|---|---|
| □交 通 |
|
|
| □所在地 | 港区南青山6-8-3 | |
| □構 造 | 鉄筋コンクリート造 地上10階建 | |
| □竣 工 | 1979年4月 | |
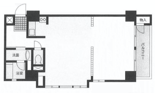
| □間取り | 1LDK | |
| □面 積 | 59.83㎡ | |
| □敷 金 | - | |
| □礼 金 | - | |
| □駐車場 | なし | |
| □設 備 |
|
|
| 部屋番号 | 間取り | 専有面積 | 賃料 | 共益費 | 敷金 | 礼金 | 入居時期 |
|---|---|---|---|---|---|---|---|
| - | - | - | - | - | - | - | - |
1LDK 59.83㎡





マンション外観
下記フォームに必要事項を入力後、確認ボタンを押してください。この物件ページのアドレスが自動で送信されます。
※賃貸物件の空室状況、募集内容の最新情報への速やかな更新に努めておりますが、募集条件、設備内容、キャンペーン等は予告無く変更されることがございますので、ご了承ください。最新状況については、ご案内の際にお渡しする募集要項等もご確認ください。
電話やメール、当サイトのフォームを利用した当社への売り込みの一切をお断りしています 。 特に、お問い合わせフォームを利用した売り込みが多くみうけられます。 しかし、当社のフォームは、お客さまからのお問い合わせを目的として設置したものです。 売り込みはこの目的外の利用であり、当社業務の阻害要因となることから、フォームを利用した売り込みの一切を固く禁止いたします。 お問い合わせフォームを利用して、繰り返し売り込みをおこなう企業様には、しかるべき対応を取らせていただく場合があります。
お問い合わせフォームを送信いただきますと、自動で受付完了のメールを送信いたします。しばらくたっても受信されないようでしたら、迷惑メールフォルダに送信されている可能性がありますので、迷惑メールフォルダをご確認いただき、「@kkf.co.jp」の迷惑メール指定を解除してください。
■空室状況は日によって変わります。お問合せいただいた時点で空室を確認しておりますが、ご見学時に終了してしまう場合もございます。あらかじめご了承ください。
■エリア・路線が同じ場合は複数件同時でもご相談致しますが、場所がまったく違う場合は絞って頂いた上でご依頼ください。
■入居審査のため、ご入居申込み時に審査書類(身分証明書・収入証明書など)のご提出をお願いしております。詳しくは「内見希望の方へ」をご覧ください。
※IPアドレスを記録しております。いたずらや嫌がらせ等はご遠慮ください
契約時に賃料1ヶ月分相当金額(+消費税)の仲介手数料を申し受けます。
指定の火災保険に加入して頂きます。
東京都品川区旗の台3-4-11 コスモス17旗の台1F
免許番号 東京都知事(6)77528号
空間建築ファクトリー株式会社
営業時間:10:00 - 19:00(定休日:水曜日・年末年始)
TEL:0120-91-6426
■取引態様:媒介
※図面と現況が異なる場合、現況を優先とします。